Howell Homestead as it looked in 2010
Ebenezer Howell, Richard Howell’s father, removed from Newark, Delaware in 1769 and 4 years later built this house. Richard and his twin brother Lewis were 19 years old when they moved into the house.
At the time of the homestead survey there were initials “RH 1773” and “LH” carved next to the rear doorway. A year later after moving into this house on December 22, 1774, Richard and Lewis Howell participated in the Greenwich Tea Burning.1 They used their father’s house as a staging area to gather with other tea burners to plan their night’s activities.
Howell Homestead is in Cumberland County, Roadstown, NJ.
Name: Howell Homestead 1773 Collection: Historic American Buildings Survey / Historic American Engineering Record / Historic American Landscapes Survey
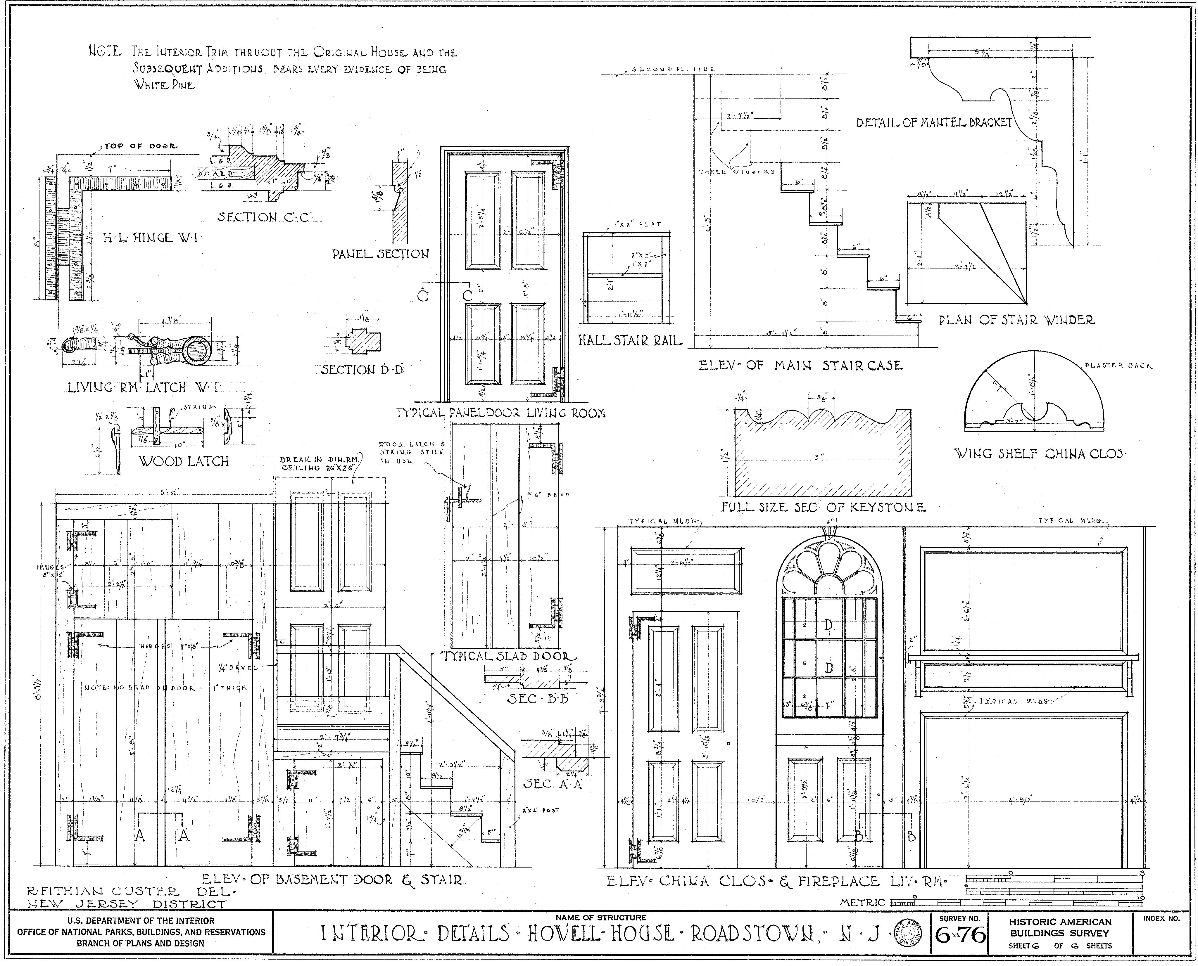
Floor Plans, Elevations, and Survey Drawings#
The following images are from the Historic American Buildings Survey (Library of Congress). Click any image to view full size.
![]() | ![]() |
![]() | ![]() |
![]() | ![]() |
A special thanks to the Smithsonian Museum for the content above. The original content can be viewed here.2
HABS Survey Record2#
6 drawings, 1 b&w photo, 4 data pages
Supplemental Material
TITLE: Howell Homestead, Roadstown Road, Roadstown, Cumberland County, NJ
CALL NUMBER: HABS NJ,6-ROATO.V,1-
REPRODUCTION NUMBER: [See Call Number]
MEDIUM: Measured Drawing(s): 6 (18 x 24 in.) Photo(s): 1 (5 x 7 in.) Data Page(s): 3 plus cover page
DATE: Documentation compiled after 1933.
CREATOR: Historic American Buildings Survey, creator
RELATED NAMES:
- Howell, Ebenezer
- Howell, Richard
- Howell, Lewis
NOTE: Survey number HABS NJ-76 Unprocessed field note material exists for this structure (75). Building/structure dates: 1773 initial construction
SUBJECTS: NEW JERSEY, Cumberland County, Roadstown
COLLECTION: Historic American Buildings Survey (Library of Congress)
REPOSITORY: Library of Congress, Prints and Photograph Division, Washington, D.C. 20540 USA
DIGITAL ID: https://hdl.loc.gov/loc.pnp/hhh.nj0452
PHOTOGRAPH CAPTION:
- Historic American Buildings Survey, Nathaniel R. Ewan, Photographer, April 24, 1936, EXTERIOR, SOUTH ELEVATION
CONTROL NUMBER: NJ0452
The Greenwich Tea Burning took place on the evening of December 22, 1774, in Greenwich, Cumberland County, NJ, when approximately forty Whig colonists destroyed a shipment of East India Company tea. It is recognized as one of five American tea-party protests of the colonial period. See “Greenwich Tea Party,” Wikipedia; and revolutionarynj.org/sites/greenwich-tea-burning-monument. ↩︎
Historic American Buildings Survey, Howell Homestead, Roadstown Road, Roadstown, Cumberland County, NJ, HABS NJ-76 (call number HABS NJ,6-ROATO.V,1-). Documentation compiled after 1933; 6 measured drawings, 1 photograph, 3 data pages plus cover. Library of Congress, Prints and Photographs Division, Washington, D.C. Digital ID: hdl.loc.gov/loc.pnp/hhh.nj0452. ↩︎ ↩︎






